Property Detail

3066 Via Montevina

Fallbrook CA 92028

$3,195,000

Status: Active

Property Details

Description

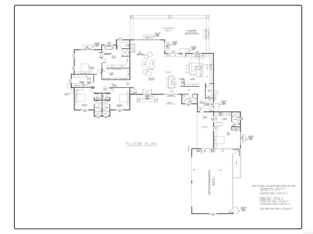
First time on the Market, Brand New Construction, 2026 Build. One of the last homes to be built in this unique private gated community of custom homes. This home reflects one of a kind open floor plan, and features all the modern amenities of luxury living. All the homes at The Ridge have been Designed and Built by Leising Builders. Each home at The Ridge has been built to the highest quality with fire resistant construction and the standards that Leising Builders has been known for with over 40 years of building experience. You will not find a more exceptional value than your own custom home at The Ridge. Home Features: 2 Ac. View Lot * Usable Land * Colored Concrete Drive with Pavers / Tile Patios * Secondary Access * RV Parking * Attached JADU * Vaulted Great Room Ceiling w/ Vintage Beams * StarLink with Mesh Network and Security Cameras Installed * Owner Owned Solar with 10kw Battery Storage * Clay Tile Roof * Seamless Gutters * Stucco Exterior W/ Stone Veneer * Sectional Garage Doors * Tankless Hot Water Heater * Finished 4 Car Oversize Garage w/ Storage Area * Thermador Appliance Package * Epoxy Garage Floors * Large Covered Patios with Wood Burning Fireplace * Dedicated Wine Storage Room * DSC Central Alarm * Solid Paneled Doors * Hand Textured Finishes * 3 Zones for Heating and Air * ERV System * Low E Vinyl Windows * 3 Fireplaces * Cat 6 Wiring * Fire Sprinklers * Central Vac * Custom Built Cabinets * Quartzite Countertops * Tile & Wood Flooring * Home Fully Landscaped Front and Rear

Map Location

Listing provided courtesy of Chad Leising of Real Broker. Last updated . Listing information © 2026 SANDICOR.